architecture . intérieur . paysage

architecture . intérieur . paysage

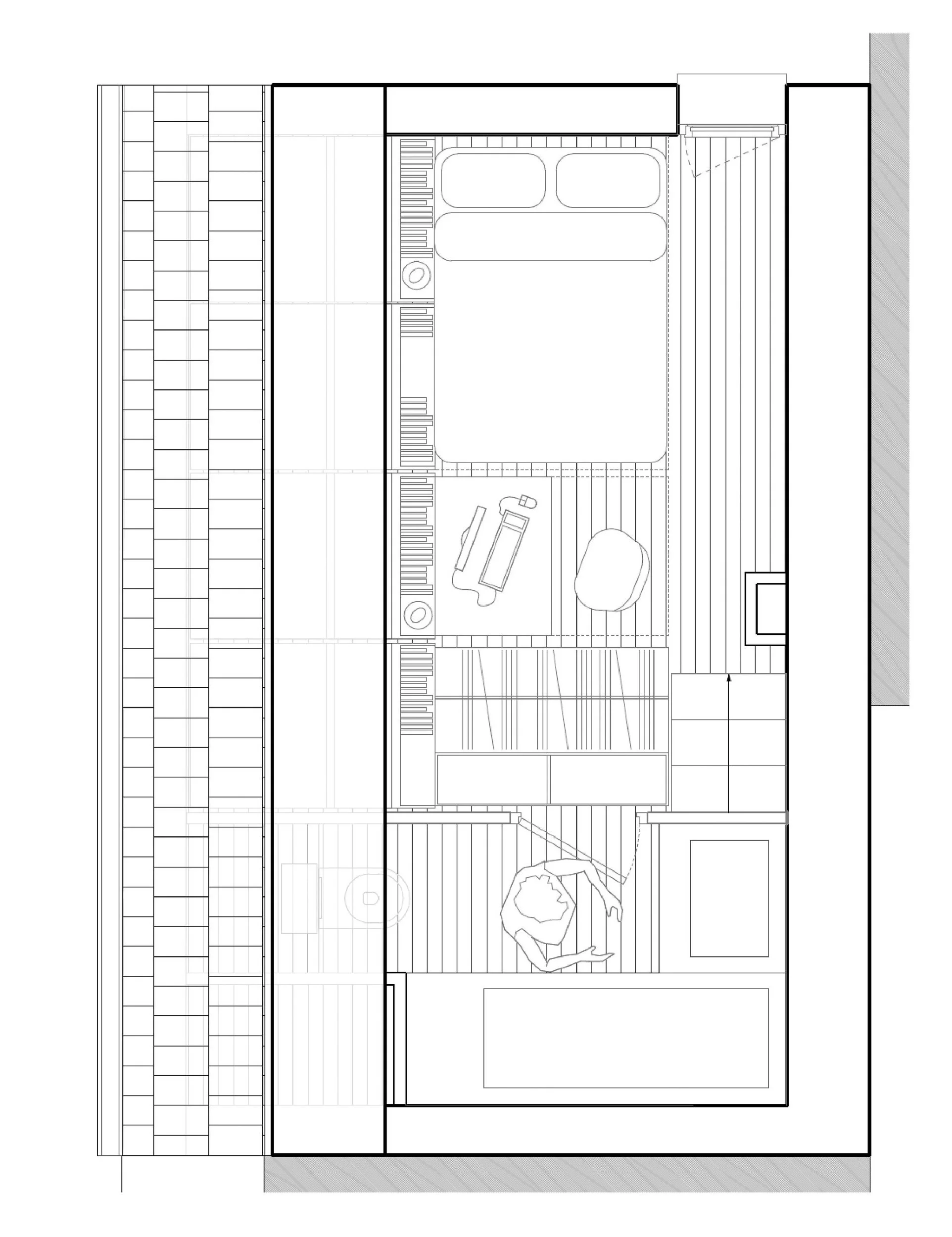
Le projet concerne une maison de la fin du XIXe siècle, caractéristique de l’architecture bourgeoise parisienne. Située en fond de cour, elle dispose d’un espace extérieur pavé et végétalisé. Le plan local d’urbanisme interdit toute extension ou surélévation, un diagnostic approfondi de l’existant a été mené au préalable. L’objectif principal était d’identifier les solutions permettant d’améliorer le confort et la fonctionnalité du logement. Un bureau d’études a été sollicité pour évaluer l’état de la structure et de la toiture, qui présentent plusieurs pathologies. Une rénovation de la couverture pour prévenir les infiltrations et un renforcement de la charpente seront nécessaires. La maison souffre également d’un manque de ventilation naturelle et d’un éclairage insuffisant. Les circulations verticales sont peu fluides, certains espaces sont mal exploités, et les rangements font défaut. L’ensemble manque d’homogénéité, tant à l’intérieur qu’à l’extérieur. Cet état des lieux a permis de dégager un programme de travaux cohérent. Au rez-de-chaussée, l’ouverture du séjour sur la cour par une grande baie vitrée permettra un apport accru de lumière naturelle et une ventilation plus efficace. Dans les combles, l’ajout de nouvelles ouvertures poursuivra le même objectif. L’espace y sera optimisé par une réduction de la salle de bain, l’ajout de rangements sur mesure sous les rampants et une meilleure exploitation des surfaces disponibles. L’ensemble des interventions visera à créer une cohérence globale, en définissant une matérialité commune capable de relier les différents espaces. Enfin, la cour sera réaménagée par la plantation de végétaux en pleine terre et la remise en état des pavés existants.

RESTRUCTURATION & RENOVATION MAISON

Matériaux Tuiles, bois

Situation Paris XVe

Clients Privés

Surface 75 m2

Estimation travaux 95 k€ HT

Statut Etudes 2024

BET Structure Origine Structures

Crédit images n studio.

Existant

Précédent
Précédent

Hab.008 Restructuration & agencement appartement

Suivant
Suivant

Hab.002 Restructuration & agencement appartement